(226) 350-1110


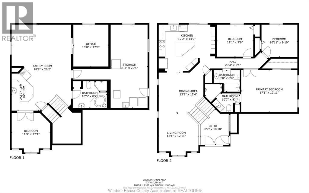
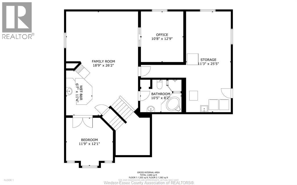
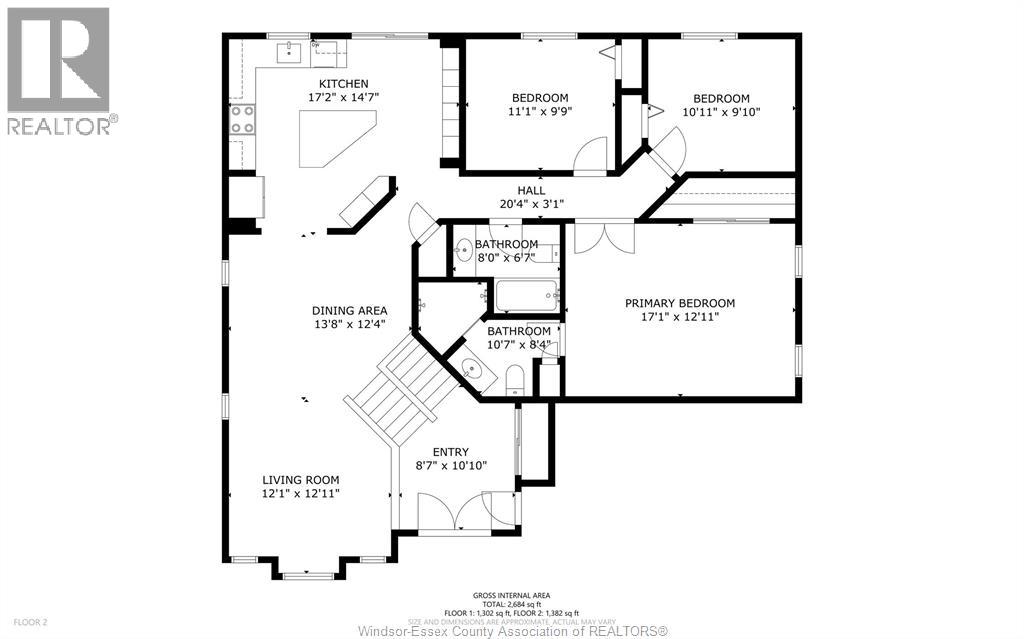
1777 MAYRAND CRESCENT - $750,000.00

Grocery Stores
Schools
Restaurants
Gas Stations
Banks
Parks
Transit
Police
Fire Station
Place of Worship
Please select an amenity above to view a list.

1777 MAYRAND CRESCENT,Tecumseh - $750,000 - Directions


 Virtual Tour    Request Information    Mortgage Calculator    Get Listing Brochure    Return to Listings  

Property Specs:

Price$750,000.00
CityTecumseh, ON
Bed / Bath5 / 3 Full
Address1777 MAYRAND CRESCENT
Listing ID26002776
StyleRaised ranch
ConstructionBrick
FlooringCarpeted, Ceramic/Porcelain, Laminate
FireplaceGas, Insert
PoolOn Ground Pool, Pool equipment
ParkingGarage
Land Size90.35 X 113.43 FT
TypeHouse
StatusFor sale

Extended Features:

Features Cul-de-sac, Finished Driveway, Front DrivewayOwnership FreeholdAppliances Dishwasher, Dryer, Microwave, Refrigerator, Stove, WasherCooling Central air conditioningFoundation BlockHeating Forced airHeating Fuel Natural gas

Details:

""Quality and Comfort Living"" Nestled in one of Tecumseh's most sought-after areas, this Fully Brick, sprawling, Raised Ranch, offers all the Bells and Whistles, and so much more. Attention to detail, everywhere, from attractive curb appeal, featuring well manicured gardens, to a rear yard ""Oasis"", with On-Ground pool, gazebo, plus added features, such as a convenient storage/ change area, great for family get togethers. The interior features open, sun drenched areas, with a smartly designed kitchen to die for, with everything the ""serious Chef"" could ever dream of, not to mention the more than ample storage space for all your new recipes. Enjoy a warm, open lower level, complete with wet bar, sprawling Rec Room w/ Fireplace, to catch up with old friends, plus a serious Office Space, and extra bedrooms for those family stayovers. Don't miss this gorgeous Gem of Tecumseh ; Truly a Special Place to call home. ALL OFFERS MUST INCLUDE ATTACHED SCHEDULE B. (id:4555)

LISTING OFFICE:
RE/MAX Preferred Realty Windsor, K.R.(bob) Kella

Comments / Live Discussion



Have a Question?


Loading...